> Məhsul Haqqında Məlumat > Məhsul Xüsusiyyətləri > Quraşdırma Məkanı və Yeri

Quraşdırma Məkanı və Yeri

Təhlükəsiz istifadəni təmin etmək üçün printeri aşağıdakı şərtlərə cavab verən məkana yerləşdirin.

  • Printerin çəkisini dəstəkləyə bilən yastı, stabil səth

  • Printerdə havalandırma yerləri və girişlərini bağlamayın və ya üstünü örtməyin

  • Kağızı yükləyə və asanlıqla çıxara bildiyiniz yerlər

  • Bu kitabçada "Ətraf Mühit Spesifikasiyalarında" şərtlərə cavab verən yerlər

Vacibdir:

Printeri aşağıdakı yerlərə yerləşdirməyin; əks halda, nasazlıq baş verə bilər.

  • Birbaşa gün işığı düşən yerlər

  • Tez-tez temperatur və rütubət dəyişməsi olan yerlər

  • Yanğına məruz qala bilən yerlər

  • Uçucu maddələrin təsirinə məruz qalan yerlər

  • Sarsıntı və ya titrəmələrə məruz qalan yerlər

  • Televizor və ya radioya yaxın yerlər

  • Hədsiz çirk və ya toz olan yerlərə yaxın

  • Su yaxınlığında

  • Kondisioner və ya qızdırıcı avadanlıq yaxınlığında

  • Nəmləndirici yaxınlığında

Sabit elektrik yaratmağa meyilli olan yerlərdə statik enerjinin yaranmasının qarşısını almaq üçün kommersiya baxımından mövcud olan anti-statik həsirdən istifadə edin.

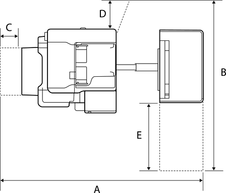
Printeri düzgün quraşdırmaq və işlətmək üçün kifayət qədər yer ayırın.

Printer

Ön hissə

A

1588 mm

B

518 mm

Yuxarı

A

1065 mm

B

1238 mm

C

70 mm

D

435 mm

E

210 mm

F

441 mm

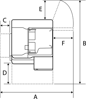
Pərçim cilalayıcısı

Ön hissə

A

1588 mm

B

518 mm

Yuxarı

A

2076 mm

B

1260 mm

C

110 mm

D

210 mm

E

456 mm

Pərçim Tamamlayıcısı ilə

Ön hissə

A

1588 mm

B

518 mm

Yuxarı

A

1665 mm

B

1260 mm

C

117 mm

D

210 mm

E

456 mm