> Informació del producte > Especificacions del producte > Espai i ubicació d'instal·lació

Espai i ubicació d'instal·lació

Per garantir un ús segur, col·loqueu la impressora en una ubicació que compleixi les condicions següents.

  • Una superfície plana i estable que pugui suportar el pes de la impressora

  • Ubicacions que no bloquegen ni tapen les sortides d'aire i obertures de la impressora

  • Ubicacions on pugueu carregar paper i treure paper fàcilment

  • Ubicacions que compleixen les condicions de la "Especificacions ambientals" d'aquesta guia

Important:

No col·loqueu la impressora a les ubicacions següents; en cas contrari pot produir-se un mal funcionament.

  • Sota la llum solar directa

  • On es puguin donar canvis ràpids de temperatura i humitat

  • On pugui produir-se foc

  • On hi pugui haver substàncies volàtils

  • On es puguin produir xocs o vibracions

  • A prop d'una televisió o una ràdio

  • A prop de terra o de pols excessiva

  • A prop de l'aigua

  • A prop d'equips d'aire condicionat o calefacció

  • A prop d'un humidificador

Utilitzeu una estora antiestàtica comercialment disponible per evitar la generació estàtica en ubicacions propenses a generar electricitat estàtica.

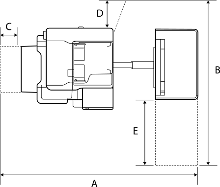
Espai suficient per instal·lar i fer funcionar la impressora correctament.

Impressora

Frontal

A

1588 mm

B

518 mm

Superior

A

1065 mm

B

1238 mm

C

70 mm

D

435 mm

E

210 mm

F

441 mm

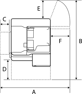
Amb la unitat d'acabat amb grapes

Frontal

A

1588 mm

B

518 mm

Superior

A

2076 mm

B

1260 mm

C

110 mm

D

210 mm

E

456 mm

Amb el finalitzador intern

Frontal

A

1588 mm

B

518 mm

Superior

A

1665 mm

B

1260 mm

C

117 mm

D

210 mm

E

456 mm