> Informace o výrobku > Technické údaje produktu > Umístění instalace a volný prostor

Umístění instalace a volný prostor

Pro zajištění bezpečného používání se tiskárna musí nacházet na místě, které splňuje následující podmínky.

  • Rovný, stabilní povrch, který unese hmotnost tiskárny

  • Umístění, které neblokuje ani nezakrývá ventilační a jiné otvory tiskárny

  • Umístění, kde bude možné snadno vkládat a vyjímat papír

  • Umístění, které splňuje podmínky v části „Specifikace provozního prostředí“ v této příručce

Důležité:

Tiskárna se nesmí nacházet na místech s následujícími podmínkami, v opačném případě může dojít k závadě.

  • Umístění vystavené přímému slunečnímu světlu

  • Umístění vystavené náhlým změnám teploty a vlhkosti

  • Umístění vystavené ohni

  • Umístění vystavené těkavým látkám

  • Umístění vystavené vibracím nebo nárazům

  • Umístění v blízkosti televize nebo rádia

  • Umístění v blízkosti nadměrného množství nečistot nebo prachu

  • Umístění v blízkosti vody

  • Umístění v blízkosti klimatizace nebo topení

  • Umístění v blízkosti zvlhčovače

Používejte komerčně dostupnou antistatickou podložku, aby nemohlo dojít ke vzniku statického náboje v umístěních náchylných ke vzniku statického náboje.

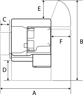
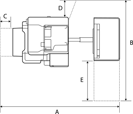
Zajistěte dostatečný prostor pro správnou montáž, provoz a obsluhu tiskárny.

Tiskárna

Přední strana

A

1588 mm

B

518 mm

Nahoře

A

1065 mm

B

1238 mm

C

70 mm

D

435 mm

E

210 mm

F

441 mm

Se sešívacím finišerem

Přední strana

A

1588 mm

B

518 mm

Nahoře

A

2076 mm

B

1260 mm

C

110 mm

D

210 mm

E

456 mm

S vnitřním finišerem

Přední strana

A

1588 mm

B

518 mm

Nahoře

A

1665 mm

B

1260 mm

C

117 mm

D

210 mm

E

456 mm