> Produktinformationen > Produktspezifikationen > Installationsstandort und Raum

Installationsstandort und Raum

Um einen sicheren Gebrauch zu gewährleisten, platzieren Sie den Drucker an einem Ort, der die folgenden Bedingungen erfüllt.

  • Eine flache, stabile Oberfläche, die das Gewicht des Druckers stützen kann

  • Standorte, bei denen die Ventilationsschlitze und Öffnungen am Drucker nicht blockiert oder zugedeckt werden

  • Standorte, an denen sich Papier leicht einlegen und entfernen lässt

  • Standorte, welche die unter „Umgebungsbedingungen“ im Handbuch angegebenen Bedingungen erfüllen

Wichtig:

Platzieren Sie den Drucker nicht an folgenden Orten, andernfalls kann es zu Defekten kommen.

  • Orte mit direktem Sonnenlicht

  • Orte mit starken Temperatur- und Luftfeuchtigkeitsschwankungen

  • Orte mit Brandgefahr

  • Orte mit entzündlichen Substanzen

  • Orte, an denen der Drucker Stößen oder Vibrationen ausgesetzt ist

  • In der Nähe eines Fernsehers oder Radios

  • In der Nähe von übermäßigem Staub oder Schmutz

  • In der Nähe von Wasser

  • In der Nähe von Klimatisierungs- oder Beheizungsgeräten

  • In der Nähe eines Luftbefeuchters

Verwenden Sie eine handelsübliche Antistatikmatte, um die Bildung von statischer Elekrizität an dafür anfälligen Orten zu unterbinden.

Halten Sie genügend Platz bereit, um den Drucker korrekt zu installieren und zu bedienen.

Drucker

Vorn

A

1588 mm

B

518 mm

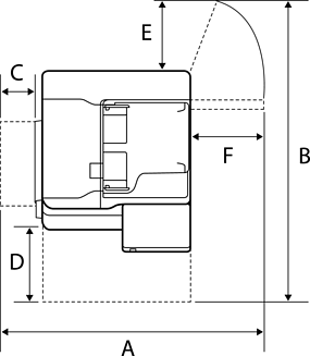
Oben

A

1065 mm

B

1238 mm

C

70 mm

D

435 mm

E

210 mm

F

441 mm

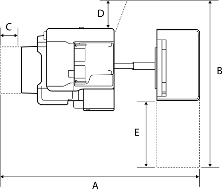
Mit Hefter-Finisher

Vorn

A

1588 mm

B

518 mm

Oben

A

2076 mm

B

1260 mm

C

110 mm

D

210 mm

E

456 mm

Mit innerem Finisher

Vorn

A

1588 mm

B

518 mm

Oben

A

1665 mm

B

1260 mm

C

117 mm

D

210 mm

E

456 mm