Требования к месту установки

Для обеспечения безопасной эксплуатации принтера его следует устанавливать в месте, отвечающем следующим требованиям.

  • Ровная устойчивая поверхность, способная выдержать вес принтера.

  • На месте установки воздухозаборники и отверстия принтера должны быть открыты для доступа воздуха.

  • Место установки должно позволять удобно загружать и вынимать бумагу.

  • Место установки должно отвечать условиям, обозначенным в разделе «Требования к условиям окружающей среды» этого руководства.

Важно:

Не устанавливайте принтер в указанных ниже местах, в противном случае возможно нарушение работы принтера.

  • Под прямыми солнечными лучами.

  • В местах с быстрыми изменениями температуры и влажности.

  • Вблизи открытого пламени.

  • В местах, подверженных действию летучих веществ.

  • В местах, подверженных ударам и вибрациям.

  • Рядом с теле- или радиоприемниками.

  • Вблизи сильно загрязненных или запыленных мест.

  • Вблизи воды.

  • Рядом с кондиционерами или обогревателями.

  • Рядом с увлажнителями воздуха.

В местах с условиями для образования электростатических зарядов для защиты принтера используйте доступные в продаже антистатические коврики.

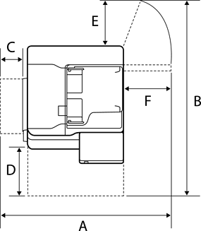
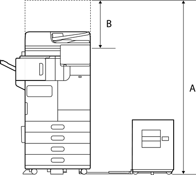
Для надлежащей установки и эксплуатации принтера обеспечьте вокруг него следующее свободное пространство.

Принтер

Передняя сторона

A

1588 мм

B

518 мм

Верх

A

1065 мм

B

1238 мм

C

70 мм

D

435 мм

E

210 мм

F

441 мм

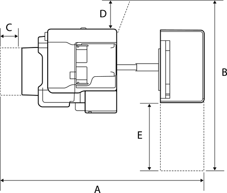
Со скрепочным финишером

Передняя сторона

A

1588 мм

B

518 мм

Верх

A

2076 мм

B

1260 мм

C

110 мм

D

210 мм

E

456 мм

С внутренним финишером

Передняя сторона

A

1588 мм

B

518 мм

Верх

A

1665 мм

B

1260 мм

C

117 мм

D

210 мм

E

456 мм