> Thông tin sản phẩm > Thông số kỹ thuật của sản phẩm > Vị trí cài đặt và không gian lưu trữ

Vị trí cài đặt và không gian lưu trữ

Nhằm đảm bảo sử dụng an toàn, đặt máy in tại vị trí đáp ứng các điều kiện sau.

  • Bề mặt ổn định, bằng phẳng, chịu được trọng lượng của máy in

  • Vị trí không chặn hoặc bịt các lỗ thông hơi hoặc lỗ hở trong máy in

  • Vị trí bạn có thể nạp giấy và tháo giấy dễ dàng

  • Vị trí đáp ứng các điều kiện trong “Thông số kỹ thuật môi trường” trong sách hướng dẫn này

Quan trọng:

Không đặt máy in tại các vị trí sau; nếu không có thể xảy ra trục trặc.

  • Dưới ánh nắng mặt trời trực tiếp

  • Chịu sự thay đổi nhanh chóng của nhiệt độ và độ ẩm

  • Gần lửa

  • Gần các chất bay hơi

  • Chịu sốc hoặc rung

  • Gần tivi hoặc đài

  • Gần nơi có quá nhiều bụi bẩn

  • Gần nước

  • Gần thiết bị điều hòa không khí hoặc sưởi ấm

  • Gần máy hút ẩm

Sử dụng tấm đệm chống tĩnh điện có bán sẵn để ngăn không tạo ra tĩnh điện tại những vị trí có thể sinh ra tĩnh điện.

Vị trí đủ chắc chắn để lắp đặt và vận hành máy in đúng cách.

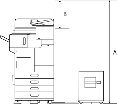
Máy in

Mặt trước

A

1588 mm

B

518 mm

Mặt trên

A

1065 mm

B

1238 mm

C

70 mm

D

435 mm

E

210 mm

F

441 mm

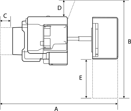
Có bộ phận dập ghim

Mặt trước

A

1588 mm

B

518 mm

Mặt trên

A

2076 mm

B

1260 mm

C

110 mm

D

210 mm

E

456 mm

Với bộ hoàn thiện bên trong

Mặt trước

A

1588 mm

B

518 mm

Mặt trên

A

1665 mm

B

1260 mm

C

117 mm

D

210 mm

E

456 mm