Um einen sicheren Gebrauch zu gewährleisten, platzieren Sie den Drucker an einem Ort, der die folgenden Bedingungen erfüllt.
Eine flache, stabile Oberfläche, die das Gewicht des Druckers stützen kann
Standorte, bei denen die Ventilationsschlitze und Öffnungen am Drucker nicht blockiert oder zugedeckt werden
Standorte, an denen sich Papier leicht einlegen und entfernen lässt
Standorte, welche die unter „Umgebungsbedingungen“ im Handbuch angegebenen Bedingungen erfüllen
Platzieren Sie den Drucker nicht an folgenden Orten, andernfalls kann es zu Defekten kommen.
Orte mit direktem Sonnenlicht
Orte mit starken Temperatur- und Luftfeuchtigkeitsschwankungen
Orte mit Brandgefahr
Orte mit entzündlichen Substanzen
Orte, an denen der Drucker Stößen oder Vibrationen ausgesetzt ist
In der Nähe eines Fernsehers oder Radios
In der Nähe von übermäßigem Staub oder Schmutz
In der Nähe von Wasser
In der Nähe von Klimatisierungs- oder Beheizungsgeräten
In der Nähe eines Luftbefeuchters
Verwenden Sie eine handelsübliche Antistatikmatte, um die Bildung von statischer Elekrizität an dafür anfälligen Orten zu unterbinden.
Halten Sie genügend Platz bereit, um den Drucker korrekt zu installieren und zu bedienen.
Drucker
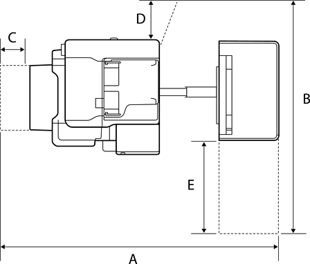
Vorn
|
A |
1588 mm |
|
B |
518 mm |
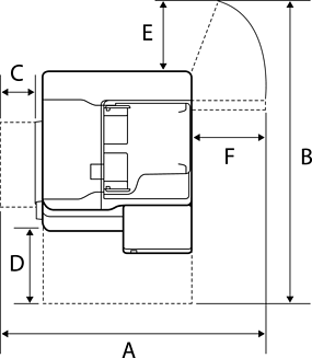
Oben
|
A |
1065 mm |
|
B |
1238 mm |
|
C |
70 mm |
|
D |
435 mm |
|
E |
210 mm |
|
F |
441 mm |
Mit Hefter-Finisher
Vorn
|
A |
1588 mm |
|
B |
518 mm |
Oben
|
A |
2076 mm |
|
B |
1260 mm |
|
C |
110 mm |
|
D |
210 mm |
|
E |
456 mm |
Mit innerem Finisher
Vorn
|
A |
1588 mm |
|
B |
518 mm |
Oben
|
A |
1665 mm |
|
B |
1260 mm |
|
C |
117 mm |
|
D |
210 mm |
|
E |
456 mm |