Ohutu kasutamise tagamiseks tuleb printeri paigaldamisel järgida allpool toodud nõudeid.
Paigaldage printer siledale ning stabiilsele pinnale, mis sobib printeri kaalu
Ärge sulgege ega katke kinni printeri ventilatsiooniavasid ning teisi avasid
Paberi laadimine ning eemaldamine peab olema lihtne
Paigalduskoht peab vastama juhendi peatükis „Keskkonnatingimused” toodud nõuetele
Ärge paigaldage printerit alljärgnevatesse asukohtadesse; vastasel juhul võivad tekkida probleemid.
Otsese päikesevalguse kätte
Kohtadesse, kus temperatuuri või õhuniiskuse kõikumine on liiga suur
Tuleohtlikkesse kohtadesse
Lenduvate ainetega kohtadesse
Kohtadesse, kus võib esineda lööke või vibratsiooni
Teleri või raadio lähedusse
Tolmustesse või määrdunud kohtadesse
Vee lähedusse
Konditsioneeride või kütteseadmete lähedusse
Õhuniisuti lähedusse
Kohtades, kus võib tekkida staatiline elekter, tuleb kasutada müügil olevaid antistaatilisi matte.
Seadme paigaldamiseks ning kasutamiseks peab olema piisavalt ruumi.
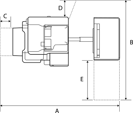
Printer
Esikülg
|
A |
1588 mm |
|
B |
518 mm |
Ülaosa
|
A |
1065 mm |
|
B |
1238 mm |
|
C |
70 mm |
|
D |
435 mm |
|
E |
210 mm |
|
F |
441 mm |
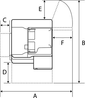
Köiteviimistlejaga
Esikülg
|
A |
1588 mm |
|
B |
518 mm |
Ülaosa
|
A |
2076 mm |
|
B |
1260 mm |
|
C |
110 mm |
|
D |
210 mm |
|
E |
456 mm |
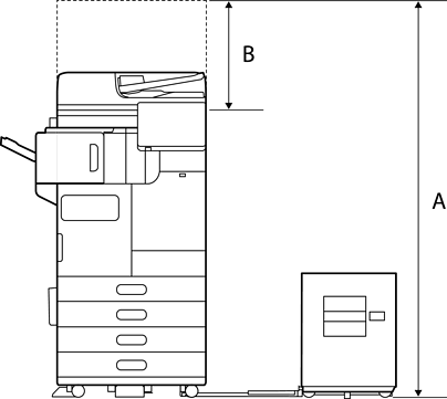
Sisemise viimistlejaga
Esikülg
|
A |
1588 mm |
|
B |
518 mm |
Ülaosa
|
A |
1665 mm |
|
B |
1260 mm |
|
C |
117 mm |
|
D |
210 mm |
|
E |
456 mm |