> Informacije o proizvodu > Specifikacije proizvoda > Mjesto i prostor za instalaciju

Mjesto i prostor za instalaciju

Da biste omogućili sigurnu uporabu, stavite pisač na mjesto koja ispunjava sljedeće uvjete.

  • Ravna, stabilna površina koja može podnijeti težinu pisača

  • Mjesta koja ne blokiraj ni pokrivaju izlaze i otvore pisača

  • Mjesta na kojima možete lako umetati i uklanjati papir

  • Mjesta koja ispunjavaju uvjete iz dijela „Specifikacije okruženja” u ovom priručniku

Važno:

Pisač nemojte stavljati na sljedeća mjesta, jer bi moglo doći do kvara.

  • Izložen izravnom sunčevom svjetlu

  • Izložen brzim promjenama temperature i vlažnosti

  • Izložen vatri

  • Izložen hlapljivim tvarima

  • Izložen udarcima ili vibracijama

  • Blizu televizora ili radiouređaja

  • Blizu velike prljavštine ili prašine

  • Blizu vode

  • Blizu klima-uređaja ili opreme za grijanje

  • Blizu ovlaživača

Koristite antistatičku podlošku dostupnu u trgovinama da biste spriječili stvaranje statičkog elektriciteta na mjestima koja su sklona stvaranju statičkog elektriciteta.

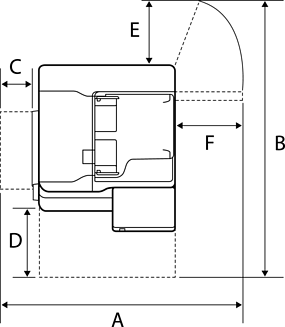
Omogućite dovoljno prostora za ispravno instaliranje i rad pisača.

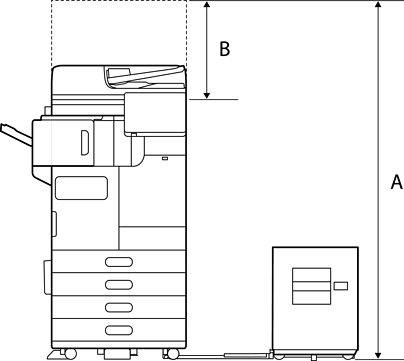
Pisač

Sprijeda

A

1588 mm

B

518 mm

Vrh

A

1065 mm

B

1238 mm

C

70 mm

D

435 mm

E

210 mm

F

441 mm

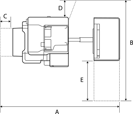
S uređajem za klamanje

Sprijeda

A

1588 mm

B

518 mm

Vrh

A

2076 mm

B

1260 mm

C

110 mm

D

210 mm

E

456 mm

S unutarnjim uređajem za završnu obradu

Sprijeda

A

1588 mm

B

518 mm

Vrh

A

1665 mm

B

1260 mm

C

117 mm

D

210 mm

E

456 mm