Орнату орны және кеңістігі

Қауіпсіз пайдалану үшін принтер орнатылатын орын келесі шарттарға сай болуы керек.

  • Принтердің салмағын көтере алатын тегіс, тұрақты бет

  • Принтердегі желдеткіш тесіктері мен саңылауларды бітемейтін немесе жаппайтын орындар

  • Қағазды оңай салып, алатын орындар

  • Осы нұсқаулықтағы «Қоршаған орта сипаттамалары» бөліміндегі шарттарға сай келетін орындар

Маңызды:

Принтерді келесі орындарға қоймаңыз, кері жағдайда ақаулық пайда болуы мүмкін.

  • Күн сәулесі тікелей түсетін

  • Температурасы немесе ылғалдылығы жылдам ауысатын

  • Өртенетін

  • Ұшқыш заттар бар

  • Соққылар немесе дірілдер бар

  • Теледидар немесе радио қасында

  • Қатты ласталған немесе шаңдалған жерде

  • Суға жақын

  • Ауа салқындатқышының немесе жылыту жабдығының қасында

  • Ылғалдандырғыш қасында

Статикалық электр тогын шығаратын орындарда статикалық электр тогының шығуын болдырмау үшін сатылымда бар антистатикалық төсенішті пайдаланыңыз.

Принтерді дұрыс орнатып, пайдалану үшін орын жеткілікті екенін тексеріңіз.

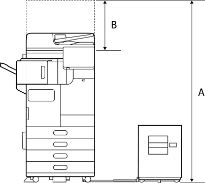
Принтер

Алдыңғы

A

1588 мм

B

518 мм

Үсті

A

1065 мм

B

1238 мм

C

70 мм

D

435 мм

E

210 мм

F

441 мм

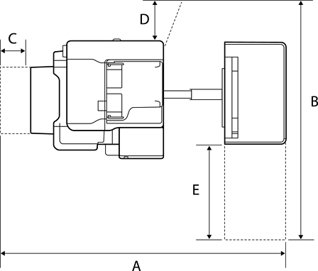
Қапсырма финишері бар

Алдыңғы

A

1588 мм

B

518 мм

Үсті

A

2076 мм

B

1260 мм

C

110 мм

D

210 мм

E

456 мм

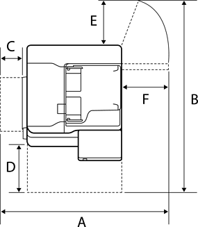
Ішкі финишері бар

Алдыңғы

A

1588 мм

B

518 мм

Үсті

A

1665 мм

B

1260 мм

C

117 мм

D

210 мм

E

456 мм