안전한 사용을 위해 프린터를 다음 조건을 만족하는 위치에 설치하십시오.
프린터의 무게를 지탱할 수 있는 평평하고 안정적인 위치
프린터의 통풍구와 구멍을 막거나 덮지 않는 위치
용지를 쉽게 넣고 제거할 수 있는 위치
이 설명서의 "환경 사양"조건을 충족하는 위치
프린터를 다음 위치에 두지 마십시오. 오작동이 발생할 수 있습니다.
직사 광선이 닿는 곳
온도나 습도가 급격히 변하는 장소
화기가 있는 곳
휘발성 물질이 있는 곳
충격이나 진동이 있는 곳
텔레비전이나 라디오 근처
이물질 또는 먼지가 많은 곳
물 근처
에어컨 또는 난방 기기 근처
가습기 근처
시판되는 정전기 방지 매트를 사용하여 정전기 발생 위험이 있는 위치에서 정전기 발생을 방지하십시오.
프린터를 올바르게 설치하고 작동할 수 있는 충분한 공간을 확보하십시오.
프린터
전면

|
A |
1588mm |
|
B |
518mm |
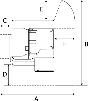
상단

|
A |
1065mm |
|
B |
1238mm |
|
C |
70mm |
|
D |
435mm |
|
E |
210mm |
|
F |
441mm |
스테이플 피니셔 포함
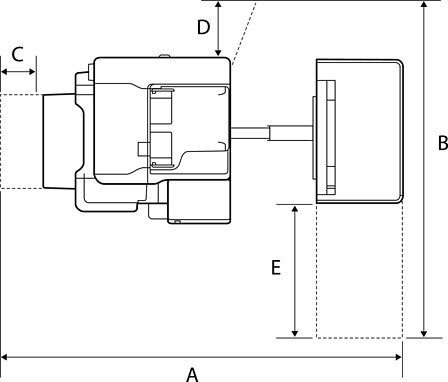
전면

|
A |
1588mm |
|
B |
518mm |
상단

|
A |
2076mm |
|
B |
1260mm |
|
C |
110mm |
|
D |
210mm |
|
E |
456mm |
이너 피니셔 포함
전면

|
A |
1588mm |
|
B |
518mm |
상단

|
A |
1665mm |
|
B |
1260mm |
|
C |
117mm |
|
D |
210mm |
|
E |
456mm |