Uzstādīšanas vieta un telpa

Lai panāktu drošu izmantošanu, novietojiet printeri vietā, kas atbilst tālāk norādītajiem nosacījumiem.

  • Plakana, stabila virsma, kas var noturēt printera svaru

  • Vieta, kas nebloķē un neaizsedz printera ventilācijas kanālus un atveres

  • Vietas, kur ir iespējams viegli ievietot un izņemt papīru

  • Vietas, kas atbilst šīs rokasgrāmatas sadaļas „Vides specifikācijas” nosacījumiem

Svarīga informācija:

Nenovietojiet printeri tālāk norādītās vietās, lai nerastos darbības traucējumi.

  • Tiešā saules gaismā

  • Vietās, kur notiek straujas temperatūras un mitruma izmaiņas

  • Uguns tuvumā

  • Gaistošu vielu tuvumā

  • Vietās, kur printeris var tikt pakļauts triecieniem vai vibrācijai

  • Televizora vai radioaparāta tuvumā

  • Vietās, kur ir pārāk daudz netīrumu vai putekļu

  • Ūdens tuvumā

  • Gaisa kondicionēšanas vai apsildes ierīču tuvumā

  • Gaisa mitrinātāja tuvumā

Izmantojiet tirdzniecībā pieejamu antistatisku paklāju, lai nepieļautu statiskās elektrības izlādi vietās, kur mēdz veidoties statiskā elektrība.

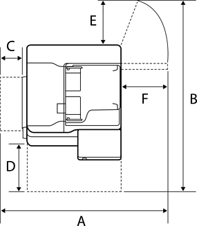
Nodrošiniet pietiekami daudz vietas printera pareizai uzstādīšanai un lietošanai.

Printeris

Priekšpuse

A

1588 mm

B

518 mm

Augšpusē

A

1065 mm

B

1238 mm

C

70 mm

D

435 mm

E

210 mm

F

441 mm

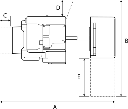
Ar skavošanas ierīci

Priekšpuse

A

1588 mm

B

518 mm

Augšpusē

A

2076 mm

B

1260 mm

C

110 mm

D

210 mm

E

456 mm

Ar iekšējo nobeidzēju

Priekšpuse

A

1588 mm

B

518 mm

Augšpusē

A

1665 mm

B

1260 mm

C

117 mm

D

210 mm

E

456 mm