> Informacje o produkcie > Dane techniczne produktu > Miejsce instalacji i wymagana przestrzeń

Miejsce instalacji i wymagana przestrzeń

Aby zapewnić bezpieczeństwo użytkowania, należy umieścić drukarkę w miejscu spełniającym następujące warunki.

  • Płaska, stabilna powierzchnia, która wytrzyma masę drukarki

  • Miejsca nieblokujące ani niezakrywające wlotów i otworów drukarki

  • Miejsca umożliwiające łatwe ładowanie papieru i jego wyjmowanie

  • Miejsca spełniające warunki przedstawione w tym podręczniku w rozdziale „Dane techniczne dotyczące środowiska pracy”

Ważne:

Nie należy umieszczać drukarki w następujących miejscach. W przeciwnym razie może wystąpić usterka.

  • Miejsca narażone na bezpośrednie światło słoneczne

  • Miejsca, w których występują gwałtowne zmiany temperatury i wilgotności

  • Miejsca narażone na ogień

  • Miejsca narażone na substancje lotne

  • Miejsca narażone na wstrząsy lub drgania

  • Miejsca w pobliżu odbiornika telewizyjnego lub radiowego

  • Miejsca o dużym zapyleniu lub zabrudzeniu

  • Miejsca w pobliżu wody

  • Miejsca w pobliżu klimatyzacji lub sprzętu grzewczego

  • Miejsca w pobliżu nawilżacza powietrza

Należy używać maty antystatycznej, aby zapobiec powstawaniu ładunków statycznych w miejscach narażonych na generowanie elektryczności statycznej.

Zabezpieczyć miejsce, aby móc zainstalować i obsługiwać drukarkę prawidłowo.

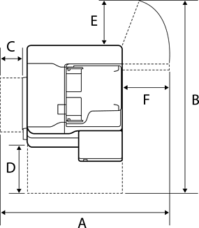
Drukarka

Przód

A

1588 mm

B

518 mm

Góra

A

1065 mm

B

1238 mm

C

70 mm

D

435 mm

E

210 mm

F

441 mm

Z finiszerem ze zszywaczem

Przód

A

1588 mm

B

518 mm

Góra

A

2076 mm

B

1260 mm

C

110 mm

D

210 mm

E

456 mm

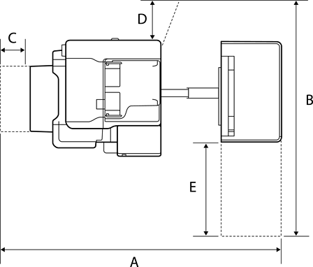
Z finiszerem wewnętrznym

Przód

A

1588 mm

B

518 mm

Góra

A

1665 mm

B

1260 mm

C

117 mm

D

210 mm

E

456 mm