为确保安全使用,请将本产品放置在符合以下条件的地方。
能够支撑本产品重量的平坦、稳固的表面
不堵塞或盖住本产品的通风口和开口的地方
可以轻松装入纸张和取出纸张的地方
符合本手册“环境规格”中的条件的地方
请勿将本产品放置在以下地方;否则可能会出现故障。
受到阳光直射
温度和湿度容易发生快速变化
容易着火
易受挥发性物质影响
易受冲击或振动
靠近电视机或收音机
靠近有较多污物或较多尘土的地方
靠近水
靠近空调或加热设备
靠近加湿器
使用市售的防静电垫,防止容易产生静电的地方产生静电。
确保有足够的空间来正确安装和操作本产品。
打印机
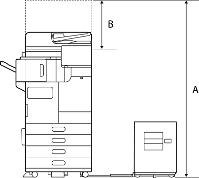
正面

|
A |
1588 毫米 |
|
B |
518 毫米 |
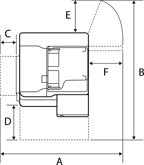
顶部

|
A |
1065 毫米 |
|
B |
1238 毫米 |
|
C |
70 毫米 |
|
D |
435 毫米 |
|
E |
210 毫米 |
|
F |
441 毫米 |
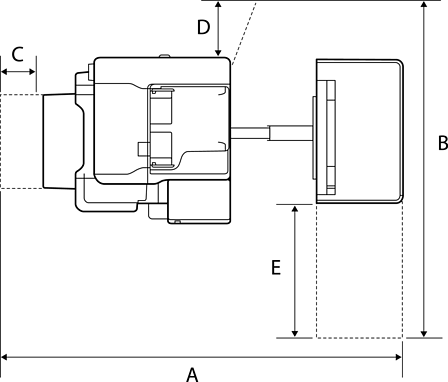
安装了普通装订器
正面

|
A |
1588 毫米 |
|
B |
518 毫米 |
顶部

|
A |
2076 毫米 |
|
B |
1260 毫米 |
|
C |
110 毫米 |
|
D |
210 毫米 |
|
E |
456 毫米 |
安装了内部装订器
正面

|
A |
1588 毫米 |
|
B |
518 毫米 |
顶部

|
A |
1665 毫米 |
|
B |
1260 毫米 |
|
C |
117 毫米 |
|
D |
210 毫米 |
|
E |
456 毫米 |