> Önüm maglumaty > Önüm spesifikasiýalary > Gurnawyň ýerleşişi we ýeri

Gurnawyň ýerleşişi we ýeri

Howpsuz ulanmagy üpjün etmek üçin, printeri şu aşakdaky şertleri berjaý edýän ýere ýerleşdiriň.

  • Printeriň agramyny saklar ýaly tekiz, durnukly ýer

  • Printeriň korpusyndaky deşikleri beklemeýän ýa-da ýapmaýan ýerler

  • Kagyzy goýup we ýeňillik bilen aýryp bolýan ýerler

  • Şu gollanmadaky "Daşky gurşaw häsiýetnamasyndaky" şertleri berjaý edýän ýerler

Möhüm:

Printeri şu aşakdaky ýerlerde goýmaň; ýogsam näsazlyk ýüze çykmagy mümkin.

  • Gönümel gün şöhlesi düşýän ýer

  • Temperaturanyň we çyglylygyň çalt üýtgeýän ýerleri

  • Oda sezewar bolýan ýerler

  • Uçujy maddalara sezewar bolýan ýerler

  • Sarsgynlara ýa-da titremelere sezewar ýerler

  • Telewizoryň ýa-da radionyň golaýy

  • Çakdanaşa hapanyň ýa-da tozanyň golaýy

  • Suwuň golaýy

  • Howa kondisioneriniň ýa-da ýyladyjy enjamyň golaýy

  • Çyglandyryjynyň golaýy

Statik tok öndürmäge meýilli ýerlerde statik tok önmeginiň öňüni almak üçin, satuwda elýeterli antistatik halyça ulanyň.

Printeri dogry gurnamaga we işletmäge ýeterlik ýer bölüp aýryň.

Printer

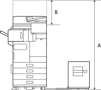
Öň tarap

A

1588 mm

B

518 mm

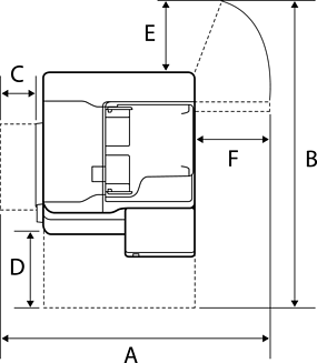
Ýokary

A

1065 mm

B

1238 mm

C

70 mm

D

435 mm

E

210 mm

F

441 mm

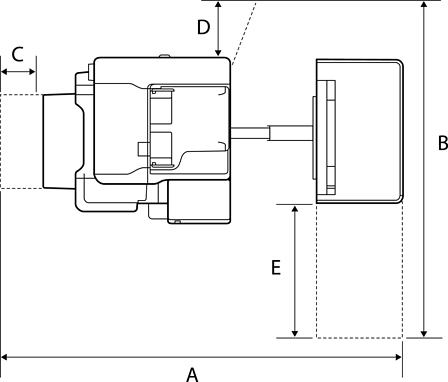
Stepler finişeri bilen

Öň tarap

A

1588 mm

B

518 mm

Ýokary

A

2076 mm

B

1260 mm

C

110 mm

D

210 mm

E

456 mm

Içerki finişer bilen

Öň tarap

A

1588 mm

B

518 mm

Ýokary

A

1665 mm

B

1260 mm

C

117 mm

D

210 mm

E

456 mm