> Ürün Bilgileri > Ürün Özellikleri > Kurulum Konumu ve Alanı

Kurulum Konumu ve Alanı

Güvenli kullanımı sağlamak için yazıcıyı aşağıdaki koşulları karşılayan bir konuma yerleştirin.

  • Yazıcıyı tartabilen düz, sabit bir yüzey

  • Yazıcıdaki hava deliklerini ve açıklıkları engellemeyen konumlar

  • Kağıt yükleyebileceğiniz ve kağıdı kolayca çıkarabileceğiniz konumlar

  • Bu kılavuzdaki “Çevre Özellikleri” koşullarını karşılayan konumlar

Önemli:

Yazıcıyı aşağıdaki konumlara yerleştirmeyin; aksi halde bir arıza oluşabilir.

  • Doğrudan güneş ışığına maruz

  • Ani ısı ve nem değişikliklerine maruz

  • Yangına maruz

  • Uçucu maddelere maruz

  • Darbe veya titreşimlere maruz

  • Bir televizyon veya bir video yakını

  • Aşırı kir veya toz yakını

  • Su yakını

  • Klima veya ısı ekipmanı yakını

  • Nemlendirici yakını

Statik enerji oluşturmaya maruz konumlarda statik oluşmasını önlemek için satın alabileceğiniz antistatik altlık kullanın.

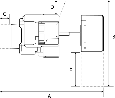
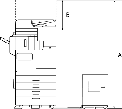
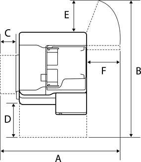
Yazıcıyı düzgün kurmak ve çalıştırmak için yeterli alan sağlayın.

Yazıcı

Ön

A

1588 mm

B

518 mm

Üst

A

1065 mm

B

1238 mm

C

70 mm

D

435 mm

E

210 mm

F

441 mm

Zımba Sonlandırıcısı ile

Ön

A

1588 mm

B

518 mm

Üst

A

2076 mm

B

1260 mm

C

110 mm

D

210 mm

E

456 mm

İç Sonlandırıcı ile

Ön

A

1588 mm

B

518 mm

Üst

A

1665 mm

B

1260 mm

C

117 mm

D

210 mm

E

456 mm