> Informació del producte > Especificacions del producte > Espai i ubicació d'instal·lació

Espai i ubicació d'instal·lació

Per garantir un ús segur, col·loqueu la impressora en una ubicació que compleixi les condicions següents.

  • Una superfície plana i estable que pugui suportar el pes de la impressora

  • Ubicacions que no bloquegen ni tapen les sortides d'aire i obertures de la impressora

  • Ubicacions on pugueu carregar paper i treure paper fàcilment

  • Ubicacions que compleixen les condicions de la "Especificacions ambientals" d'aquesta guia

Important:

No col·loqueu la impressora a les ubicacions següents; en cas de fer-ho, es podria produir un mal funcionament.

  • Sota la llum solar directa

  • On es puguin donar canvis ràpids de temperatura i humitat

  • On pugui produir-se foc

  • On hi pugui haver substàncies volàtils

  • On es puguin produir xocs o vibracions

  • A prop d'una televisió o una ràdio

  • A prop de terra o de pols excessiva

  • A prop de l'aigua

  • A prop d'equips d'aire condicionat o calefacció

  • A prop d'un humidificador

Utilitzeu una estora antiestàtica comercialment disponible per evitar la generació estàtica en ubicacions propenses a generar electricitat estàtica.

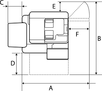
Espai suficient per instal·lar i fer funcionar la impressora correctament.

Frontal

A

1449.3 mm (57.1 polz.)

B

366.5 mm (14.4 polz.)

C

1055.8 mm (41.6 polz.)

Superior

A

939.7 mm (36.9 polz.)

B

944.0 mm (37.2 polz.)

C

353.4 mm (13.9 polz.)

D

332.0 mm (13.1 polz.)

E

122.0 mm (4.8 polz.)

F

386.5 mm (15.2 polz.)