Орнату орны және кеңістігі

Қауіпсіз пайдалану үшін принтер орнатылатын орын келесі шарттарға сай болуы керек.

  • Принтердің салмағын көтере алатын тегіс, тұрақты бет

  • Принтердегі желдеткіш тесіктері мен саңылауларды бітемейтін немесе жаппайтын орындар

  • Қағазды оңай салып, алатын орындар

  • Осы нұсқаулықтағы «Қоршаған орта сипаттамалары» бөліміндегі шарттарға сай келетін орындар

Маңызды:

Принтерді келесі орындарға қоймаңыз, кері жағдайда ақаулық пайда болуы мүмкін.

  • Күн сәулесі тікелей түсетін

  • Температурасы немесе ылғалдылығы жылдам ауысатын

  • Өртенетін

  • Ұшқыш заттар бар

  • Соққылар немесе дірілдер бар

  • Теледидар немесе радио қасында

  • Қатты ласталған немесе шаңдалған жерде

  • Суға жақын

  • Ауа салқындатқышының немесе жылыту жабдығының қасында

  • Ылғалдандырғыш қасында

Статикалық электр тогын шығаратын орындарда статикалық электр тогының шығуын болдырмау үшін сатылымда бар антистатикалық төсенішті пайдаланыңыз.

Принтерді дұрыс орнатып, пайдалану үшін орын жеткілікті екенін тексеріңіз.

Алды

A

1449.3 мм (57.1 дюйм)

B

366.5 мм (14.4 дюйм)

C

1055.8 мм (41.6 дюйм)

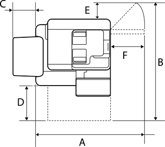
Үсті

A

939.7 мм (36.9 дюйм)

B

944.0 мм (37.2 дюйм)

C

353.4 мм (13.9 дюйм)

D

332.0 мм (13.1 дюйм)

E

122.0 мм (4.8 дюйм)

F

386.5 мм (15.2 дюйм)