> Информация за продукта > Спецификации на продукта > Местоположение и място за монтаж

Местоположение и място за монтаж

За да гарантирате безопасно използване, поставете принтера на място, което отговаря на следните условия.

  • Равна и стабилна повърхност, която може да издържи тежестта на принтера

  • Места, които не блокират и не покриват вентилационните отвори на принтера

  • Места, където можете да зареждате и изваждате лесно хартия

  • Места, които отговарят на условията в „Спецификации на околната среда“ в това ръководство

Важно:

Не поставяйте принтера в следните места; в противен случай може да възникне неизправност.

  • При условия на пряка слънчева светлина

  • При условия на бързи промени в температурата и влажността

  • При условия на пожар

  • При условия на летливи вещества

  • При условия на удари или вибрации

  • Близо до телевизор или радио

  • Близо до прекомерно количество мръсотия или прах

  • Близо до вода

  • Близо до климатици или оборудване за отопление

  • Близо до овлажнител

Използвайте достъпна в търговската мрежа антистатична подложка за предотвратяване на статично генериране на места, които са склонни да генерират статично електричество.

Осигурете достатъчно място за правилно монтиране и експлоатация на принтера.

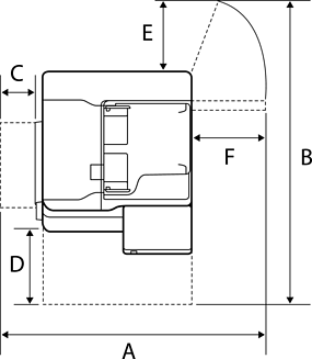
Принтер

Предна част

A

1588 mm

B

518 mm

Горна част

A

1065 mm

B

1238 mm

C

70 mm

D

435 mm

E

210 mm

F

441 mm

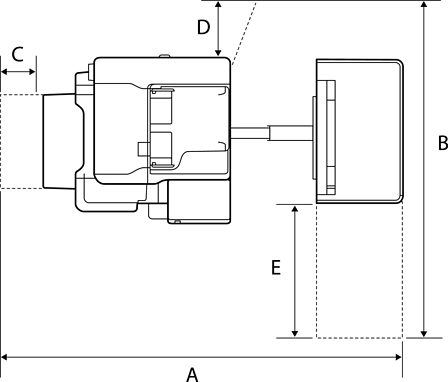
С устройство за съшиване със скоби

Предна част

A

1588 mm

B

518 mm

Горна част

A

2076 mm

B

1260 mm

C

110 mm

D

210 mm

E

456 mm

С вътрешен финишър

Предна част

A

1588 mm

B

518 mm

Горна част

A

1665 mm

B

1260 mm

C

117 mm

D

210 mm

E

456 mm