> Tuotetiedot > Tuotteen tekniset tiedot > Asennussijainti ja -paikka

Asennussijainti ja -paikka

Varmistaaksesi, että voit käyttää tulostinta turvallisesti, asenna se seuraavat ehdot täyttävään paikkaan.

  • Tasainen, vakaa alusta, joka voi tukea tulostimen painoa

  • Sijainnit, jotka eivät tuki tai peitä tulostimessa olevia aukkoja

  • Sijainnit, joihin voit ladata paperia ja poistaa sen helposti

  • Sijainnit, jotka täyttävät ”Ympäristöä koskevien teknisten tietojen” ehdot manuaalissa

Tärkeää:

Älä aseta tulostinta seuraaviin sijainteihin; muuten se voi toimia huonosti.

  • Suoralle auringonvalolle alttiisiin sijainteihin

  • Sijainteihin, joissa lämpötila ja kosteus voivat vaihdella nopeasti

  • Tulelle alttiisiin sijainteihin

  • Räjähdysherkille aineille alttiisiin sijainteihin

  • Shokeille ja tärinälle alttiisiin sijainteihin

  • Lähelle televisiota tai radiota

  • Lähelle ylenmääräistä likaa tai pölyä

  • Lähelle vettä

  • Lähelle tuuletus- tai lämmityslaitteita

  • Lähelle ilmankostutinta

Käytä kaupallisesti saatavaa antistaattista mattoa estääksesi staattisen sähkön syntymisen sijainneissa, joissa staattista sähköä syntyy helposti.

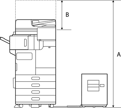
Varmista, että käytössäsi on tarpeeksi tilaa asentaaksesi tulostimen ja käyttääksesi sitä oikein.

Tulostin

Etupuoli

A

1588 mm

B

518 mm

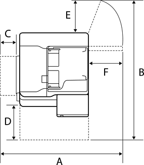
Ylä

A

1065 mm

B

1238 mm

C

70 mm

D

435 mm

E

210 mm

F

441 mm

Nidonnan viimeistelytyökalulla

Etupuoli

A

1588 mm

B

518 mm

Ylä

A

2076 mm

B

1260 mm

C

110 mm

D

210 mm

E

456 mm

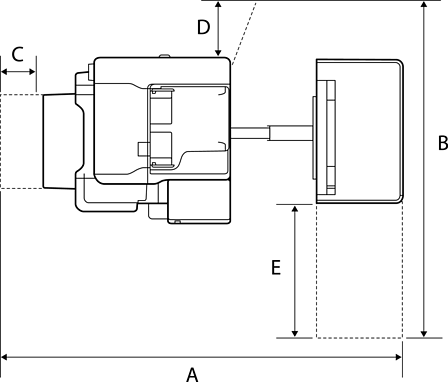
Sisäisellä viimeistelijällä

Etupuoli

A

1588 mm

B

518 mm

Ylä

A

1665 mm

B

1260 mm

C

117 mm

D

210 mm

E

456 mm