> Termékinformációk > Termékspecifikációk > Telepítés, helyszín és terület

Telepítés, helyszín és terület

A biztonságos használathoz helyezze a nyomtatót olyan helyre, amely megfelel az alábbi követelményeknek.

  • Sima, stabil felület, mely megtartja a nyomtató súlyát

  • Olyan terület, mely nem zárja el és nem fedi le a nyomtató ventilátorait és nyílásait

  • Olyan terület, ahol könnyedén töltheti be és veheti ki a papírt

  • Olyan terület, amely megfelel a kézikönyv „Környezeti jellemzők” részében leírtaknak

Fontos:

Ne helyezze a nyomtatót a következő helyekre; különben a nyomtató rendellenesen működhet.

  • Ne tegye ki közvetlen napfénynek

  • Ne tegye olyan helyre, ahol gyors változások következhetnek be a hőmérsékletben vagy a páratartalomban

  • Ne tegye ki nyílt láng hatásának

  • Ne tegye ki gyúlékony anyagok hatásának

  • Ne tegye ki rázkódásnak vagy rezgésnek

  • Ne helyezze televízió vagy rádió közelébe

  • Ne tegye ki nagy mennyiségű szennyeződésnek vagy pornak

  • Ne helyezze víz közelébe

  • Ne helyezze légkondicionáló vagy hősugárzó közelébe

  • Ne helyezze párásító készülék közelébe

Olyan helyeken, ahol nagy eséllyel keletkezhet elektrosztatikusság, ennek elkerülésére használjon kereskedelmi forgalomban kapható antisztatikus alátétet.

Legyen kellően biztonságos a hely a nyomtató megfelelő összeszereléséhez és működtetéséhez.

Nyomtató

Előlap

A

1588 mm

B

518 mm

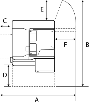
Felül

A

1065 mm

B

1238 mm

C

70 mm

D

435 mm

E

210 mm

F

441 mm

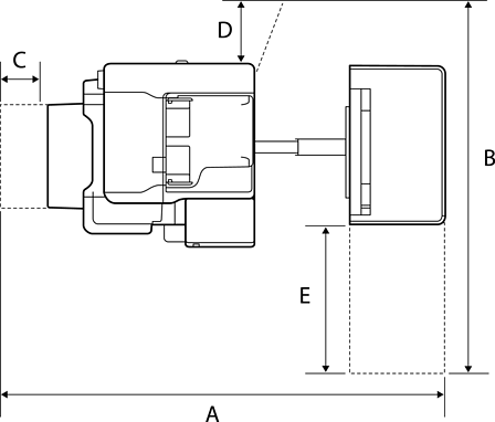
A tűző finisherrel

Előlap

A

1588 mm

B

518 mm

Felül

A

2076 mm

B

1260 mm

C

110 mm

D

210 mm

E

456 mm

A belső finisherrel

Előlap

A

1588 mm

B

518 mm

Felül

A

1665 mm

B

1260 mm

C

117 mm

D

210 mm

E

456 mm