為確保安全使用,請將印表機放置於符合以下條件的位置。
可支撐印表機重量的平穩表面
未勿堵住或蓋住印表機內通風孔與開口的位置
可輕鬆放入及取出紙張的位置
符合本手冊「環境規格」內之條件的位置
請勿將印表機放置於以下位置,否則可能出現故障。
遭受陽光直曬
遭受溫度和濕度快速變化
遭受火災
遭受揮發性物質影響
遭受衝擊或震動
靠近電視或無線電
靠近過多髒汙或灰塵
靠近水
靠近空調或取暖設備
靠近加濕器
使用市售防靜電墊,防止在易於產生靜電的位置產生靜電。
確保有足夠空間可用於正確安裝和操作印表機。
印表機
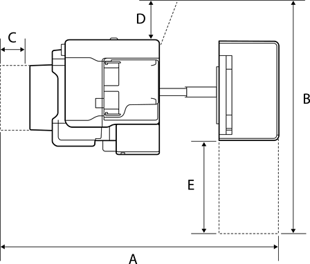
前方
|
A |
1588 mm |
|
B |
518 mm |
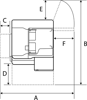
頂部
|
A |
1065 mm |
|
B |
1238 mm |
|
C |
70 mm |
|
D |
435 mm |
|
E |
210 mm |
|
F |
441 mm |
含一般裝訂器
前方
|
A |
1588 mm |
|
B |
518 mm |
頂部
|
A |
2076 mm |
|
B |
1260 mm |
|
C |
110 mm |
|
D |
210 mm |
|
E |
456 mm |
含內部裝訂器
前方
|
A |
1588 mm |
|
B |
518 mm |
頂部
|
A |
1665 mm |
|
B |
1260 mm |
|
C |
117 mm |
|
D |
210 mm |
|
E |
456 mm |