> Información sobre el producto > Especificaciones del producto > Lugar y espacio de instalación

Lugar y espacio de instalación

Para garantizar un uso seguro, coloque la impresora en un lugar que cumpla las siguientes condiciones.

  • Superficie plana y estable que pueda soportar el peso de la impresora

  • Ubicación donde no se tapen ni obstruyan los orificios de ventilación o las entradas de aire de la impresora

  • Ubicación donde pueda cargar y retirar el papel con facilidad

  • Ubicación que cumpla las condiciones de las «Especificaciones medioambientales» del presente manual

Importante:

No coloque la impresora en los siguientes lugares; en caso contrario, podría producirse una avería.

  • Lugares expuestos a la luz solar directa

  • Lugares expuestos a cambios súbitos de temperatura y humedad

  • Lugares que presenten riesgo de incendio

  • Lugares con riesgo de presencia de sustancias volátiles

  • Lugares donde pueda sufrir golpes o vibraciones

  • Cerca de una televisión o una radio

  • Cerca de excesiva suciedad o polvo

  • Cerca del agua

  • Cerca de fuentes de calor o aire acondicionado

  • Cerca de un humidificador

Emplee una alfombrilla antiestática disponible en el mercado para evitar la generación de electricidad estática en lugares con tendencia a ello.

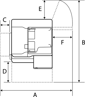
Deje suficiente espacio para poder instalar y manejar la impresora adecuadamente.

Impresora

Delante

A

1588 mm

B

518 mm

Arriba

A

1065 mm

B

1238 mm

C

70 mm

D

435 mm

E

210 mm

F

441 mm

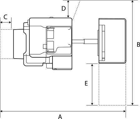
Con unidad de acabado con grapas

Delante

A

1588 mm

B

518 mm

Arriba

A

2076 mm

B

1260 mm

C

110 mm

D

210 mm

E

456 mm

Con acabado interior

Delante

A

1588 mm

B

518 mm

Arriba

A

1665 mm

B

1260 mm

C

117 mm

D

210 mm

E

456 mm