Аюулгүй ашиглалтыг хангахын тулд принтерийг дараах нөхцөлд таарсан байрлалд байрлуулна.
Принтерийн жинг дэмжих боломжтой тэгш, тогтвортой гадаргуу
Принтерийн хоолой, нээлтийг хааж, таглахгүй байх байрлал
Цаасыг төвөггүй ачаалж, гаргах боломжтой байрлал
Энэ гарын авлагын "Орчны нөхцөл" дэх нөхцлүүдийг хангасан байрал
Принтерийг дараах байрлалд байрлуулж болохгүй; эс тэгвээс эвдрэх магадлалтай.
Нар шууд тусах газар
Температур, чийгшлийн эрс өөрчлөлт бүхий газар
Гал гарч болзошгүй газар
Дэгдэмхий бодис бүхий газар
Донслох, чичирхийлэх газар
Телевиз эсвэл радионы ойролцоо
Хэт их шороо тоостой газар
Устай ойролцоо
Агааржуулагч эсвэл халаагч төхөөрөмжийн ойролцоо
Чийгшүүлэгчийн ойролцоо
Статик цахилгаан үүсгэх магадлалтай байршилд урьдчилан сэргийлэх зорилгоор худалдаанд байдаг статикийн эсрэг шалны дэвсгэрийг ашиглана уу.
Принтерийг зөв суурилуулж, ажиллуулах хангалттай зайг гарга.
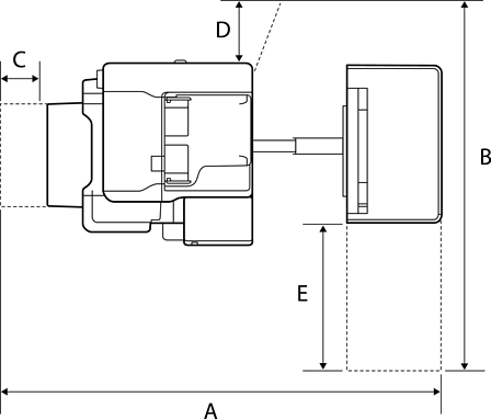
Хэвлэгч
Урд
|
A |
1588 мм |
|
B |
518 мм |
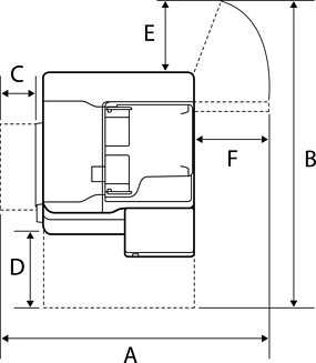
Дээд
|
A |
1065 мм |
|
B |
1238 мм |
|
C |
70 мм |
|
D |
435 мм |
|
E |
210 мм |
|
F |
441 мм |
Үдэлт гүйцээгчтэй
Урд
|
A |
1588 мм |
|
B |
518 мм |
Дээд
|
A |
2076 мм |
|
B |
1260 мм |
|
C |
110 мм |
|
D |
210 мм |
|
E |
456 мм |
Дотоод гүйцээгчтэй
Урд
|
A |
1588 мм |
|
B |
518 мм |
Дээд
|
A |
1665 мм |
|
B |
1260 мм |
|
C |
117 мм |
|
D |
210 мм |
|
E |
456 мм |