> Maklumat Produk > Spesifikasi Produk > Lokasi Pemasangan dan Ruang

Lokasi Pemasangan dan Ruang

Untuk memastikan penggunaan yang selamat, letakkan pencetak di lokasi yang memenuhi syarat berikut.

  • Permukaan rata yang stabil yang boleh menyokong berat pencetak

  • Lokasi yang tidak menghalang atau menutup ruang udara dan bukaan dalam pencetak

  • Lokasi yang mudah untuk anda mengisi dan mengeluarkan kertas

  • Lokasi yang memenuhi syarat dalam “Spesifikasi Persekitaran” dalam manual ini

Penting:

Jangan letakkan pencetak dalam lokasi berikut; jika tidak, pincang tugas boleh berlaku.

  • Tertakluk kepada pendedahan terhadap cahaya matahari

  • Tertakluk kepada perubahan suhu dan kelembapan yang cepat

  • Tertakluk kepada kebakaran

  • Tertakluk kepada bahan yang mudah berubah

  • Tertakluk kepada hentakan dan gegaran

  • Berhampiran televisyen atau radio

  • Berhampiran kekotoran atau habuk yang berlebihan

  • Berhampiran air

  • Berhampiran peralatan pendingin hawa atau pemanas

  • Berhampiran pelembap

Gunakan pelapik antistatik untuk menghalang penghasilan statik di lokasi yang terdedah untuk menghasilkan elektrik statik.

Letakkan pada tempat yang bersesuaian untuk memasang dan mengendalikan pencetak dengan betul.

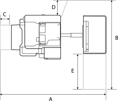
Pencetak

Hadapan

A

1588 mm

B

518 mm

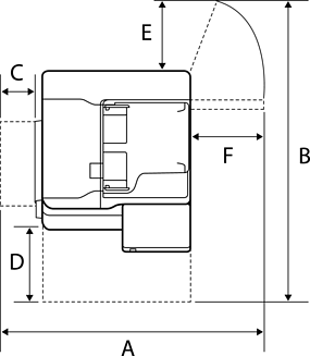
Atas

A

1065 mm

B

1238 mm

C

70 mm

D

435 mm

E

210 mm

F

441 mm

Dengan Penyudah Kokot

Hadapan

A

1588 mm

B

518 mm

Atas

A

2076 mm

B

1260 mm

C

110 mm

D

210 mm

E

456 mm

Dengan Pengemas Dalaman

Hadapan

A

1588 mm

B

518 mm

Atas

A

1665 mm

B

1260 mm

C

117 mm

D

210 mm

E

456 mm