> Productinformatie > Productspecificaties > Installatielocatie en -ruimte

Installatielocatie en -ruimte

Plaats de printer op een locatie die aan de volgende voorwaarden voldoet om een veilig gebruik te garanderen.

  • Een vlak, stabiel oppervlak dat het gewicht van de printer kan dragen

  • Locaties waar de openingen in de behuizing van de printer niet worden geblokkeerd of afgedekt

  • Locaties waar u eenvoudig papier kunt laden en verwijderen

  • Locaties die voldoen aan de voorwaarden in het gedeelte "Omgevingsspecificaties" van deze handleiding

Belangrijk:

Plaats de printer niet op de volgende locaties. Er kunnen anders storingen optreden.

  • Locaties in vol zonlicht

  • Locaties met grote schommelingen in temperatuur en luchtvochtigheid

  • Locaties met brandgevaar

  • Locaties met brandbare stoffen

  • Locaties waar kans is op schokken of trillingen

  • Nabij een televisie of radio

  • Nabij overmatig vuil of stof

  • Nabij water

  • Nabij airconditionings- of verwarmingsapparaten

  • Nabij een luchtbevochtiger

Gebruik een in de handel verkrijgbare antistatische mat om de opbouw van statische elektriciteit te voorkomen in omgevingen waar de kans op statische elektriciteit groot is.

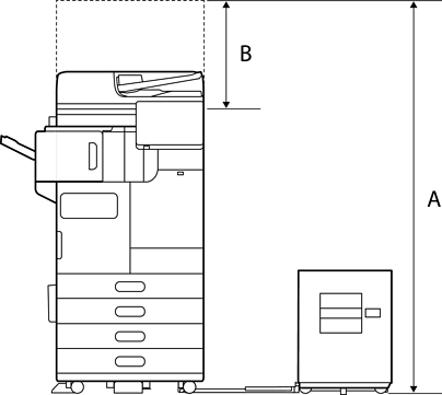
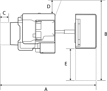
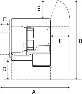
Zorg voor voldoende ruimte om de printer correct te plaatsen en gebruiken.

Printer

Voorzijde

A

1588 mm

B

518 mm

Bovenzijde

A

1065 mm

B

1238 mm

C

70 mm

D

435 mm

E

210 mm

F

441 mm

Met nietmachine

Voorzijde

A

1588 mm

B

518 mm

Bovenzijde

A

2076 mm

B

1260 mm

C

110 mm

D

210 mm

E

456 mm

Met binnenafwerkingseenheid

Voorzijde

A

1588 mm

B

518 mm

Bovenzijde

A

1665 mm

B

1260 mm

C

117 mm

D

210 mm

E

456 mm