> Produktinformasjon > Produktspesifikasjoner > Installering, sted og plass

Installering, sted og plass

Sikker bruk oppnås ved å plassere skriveren et sted som tilfredsstiller følgende betingelser.

  • En flat, stabil overflate som tåler skriverens vekt

  • Steder som ikke blokkerer eller dekker til luftehullene og åpningene på skriveren

  • Steder der du enkelt kan legge inn og fjerne papir

  • Steder som tilfredsstiller betingelsene i «Miljøspesifikasjoner» i denne håndboken

Forsiktighetsregel:

Ikke plasser skriveren på følgende steder, da dette kan føre til funksjonsfeil.

  • Utsatt for direkte sollys

  • Utsatt for hurtige endringer i temperatur og fuktighet

  • Utsatt for brann

  • Utsatt for flyktige stoffer

  • Utsatt for sjokk eller vibrasjoner

  • Nær en TV eller radio

  • Nær mye jord eller støv

  • Nær vann

  • Nær klimaanlegg eller varmeanlegg

  • Nær en luftfukter

Bruk en kommersielt tilgjengelig antistatisk matte for å unngå statisk utvikling på steder som er utsatt for utvikling av statisk elektrisitet.

Sørg for at det er nok plass til å installere og bruke skriveren skikkelig.

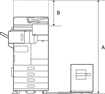
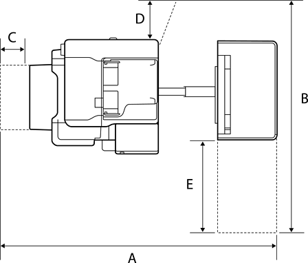
Skriver

Front

A

1588 mm

B

518 mm

Topp

A

1065 mm

B

1238 mm

C

70 mm

D

435 mm

E

210 mm

F

441 mm

Med etterbehandleren med stifter

Front

A

1588 mm

B

518 mm

Topp

A

2076 mm

B

1260 mm

C

110 mm

D

210 mm

E

456 mm

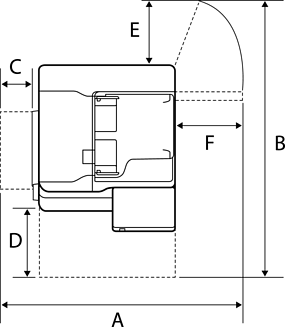
Med indre etterbehandler

Front

A

1588 mm

B

518 mm

Topp

A

1665 mm

B

1260 mm

C

117 mm

D

210 mm

E

456 mm