Aby zapewnić bezpieczeństwo użytkowania, należy umieścić drukarkę w miejscu spełniającym następujące warunki.
Płaska, stabilna powierzchnia, która wytrzyma masę drukarki
Miejsca nieblokujące ani niezakrywające wlotów i otworów drukarki
Miejsca umożliwiające łatwe ładowanie papieru i jego wyjmowanie
Miejsca spełniające warunki przedstawione w tym podręczniku w rozdziale „Dane techniczne dotyczące środowiska pracy”
Nie należy umieszczać drukarki w następujących miejscach. W przeciwnym razie może wystąpić usterka.
Miejsca narażone na bezpośrednie światło słoneczne
Miejsca, w których występują gwałtowne zmiany temperatury i wilgotności
Miejsca narażone na ogień
Miejsca narażone na substancje lotne
Miejsca narażone na wstrząsy lub drgania
Miejsca w pobliżu odbiornika telewizyjnego lub radiowego
Miejsca o dużym zapyleniu lub zabrudzeniu
Miejsca w pobliżu wody
Miejsca w pobliżu klimatyzacji lub sprzętu grzewczego
Miejsca w pobliżu nawilżacza powietrza
Należy używać maty antystatycznej, aby zapobiec powstawaniu ładunków statycznych w miejscach narażonych na generowanie elektryczności statycznej.
Zabezpieczyć miejsce, aby móc zainstalować i obsługiwać drukarkę prawidłowo.
Drukarka
Przód
|
A |
1588 mm |
|
B |
518 mm |
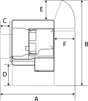
Góra
|
A |
1065 mm |
|
B |
1238 mm |
|
C |
70 mm |
|
D |
435 mm |
|
E |
210 mm |
|
F |
441 mm |
Z finiszerem ze zszywaczem
Przód
|
A |
1588 mm |
|
B |
518 mm |
Góra
|
A |
2076 mm |
|
B |
1260 mm |
|
C |
110 mm |
|
D |
210 mm |
|
E |
456 mm |
Z finiszerem wewnętrznym
Przód
|
A |
1588 mm |
|
B |
518 mm |
Góra
|
A |
1665 mm |
|
B |
1260 mm |
|
C |
117 mm |
|
D |
210 mm |
|
E |
456 mm |