Če želite zagotoviti varno uporabo, tiskalnik postavite na mesto, ki ustreza tem pogojem.
Ravna, stabilna površina, ki vzdrži težo tiskalnika
Mesta, ki ne ovirajo in ne pokrivajo prezračevalnih rež in odprtin na tiskalniku
Mesta, kjer lahko enostavno naložite in odstranite papir
Mesta, ki ustrezajo zahtevam »Okoljskih specifikacij« tega priročnika
Tiskalnika ne postavite na ta mesta, kajti v nasprotnem primeru lahko pride do okvare.
Mesto, izpostavljeno neposredni sončni svetlobi
Mesto, izpostavljeno hitrim temperaturnim spremembam in vlažnosti
Mesto, izpostavljeno požaru
Mesto, izpostavljeno škodljivim snovem
Mesto, izpostavljeno udarom ali vibracijam
Mesto v bližini televizorja ali radijskega sprejemnika
Mesto, ki je umazano ali prašno
Mesto v bližini vode
Mesto v bližini klimatske ali ogrevalne naprave
Mesto v bližini razvlaževalnika
Uporabite antistatično preprogo, da preprečite ustvarjanje statike na mestih, ki so podvržena tvorjenju statične elektrike.
Poskrbite, da je v bližini tiskalnika dovolj prostora za postavitev in pravilno delovanje tiskalnika.
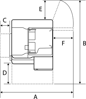
Tiskalnik
Sprednja stran
|
A |
1588 mm |
|
B |
518 mm |
Zgoraj
|
A |
1065 mm |
|
B |
1238 mm |
|
C |
70 mm |
|
D |
435 mm |
|
E |
210 mm |
|
F |
441 mm |
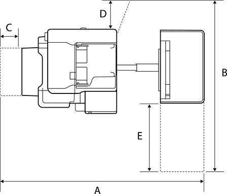
Z zaključevalnikom spenjanja
Sprednja stran
|
A |
1588 mm |
|
B |
518 mm |
Zgoraj
|
A |
2076 mm |
|
B |
1260 mm |
|
C |
110 mm |
|
D |
210 mm |
|
E |
456 mm |
Z notranji zaključevalnikom
Sprednja stran
|
A |
1588 mm |
|
B |
518 mm |
Zgoraj
|
A |
1665 mm |
|
B |
1260 mm |
|
C |
117 mm |
|
D |
210 mm |
|
E |
456 mm |