> ข้อมูลของผลิตภัณฑ์ > ข้อมูลจำเพาะผลิตภัณฑ์ > ตำแหน่งและพื้นที่การติดตั้ง

ตำแหน่งและพื้นที่การติดตั้ง

เพื่อให้มั่นใจในการใช้งานที่ปลอดภัย ให้วางเครื่องพิมพ์ในตำแหน่งที่เป็นไปตามเงื่อนไขต่อไปนี้

  • พื้นที่ราบ มั่นคงที่สามารถรองรับน้ำหนักของเครื่องพิมพ์ได้

  • ตำแหน่งที่ไม่ขัดขวางหรือปิดช่องระบายอากาศและช่องเปิดของเครื่องพิมพ์

  • ตำแหน่งที่คุณสามารถโหลดกระดาษและนำกระดาษออกได้ง่าย

  • ตำแหน่งที่เป็นไปตามเงื่อนไขของ "ข้อมูลจำเพาะด้านสิ่งแวดล้อม" ในคู่มือนี้

ข้อความที่สำคัญ:

อย่าวางเครื่องพิมพ์ในตำแหน่งต่อไปนี้ มิฉะนั้นเครื่องพิมพ์อาจทำงานผิดปกติได้

  • สัมผัสกับแสงอาทิตย์โดยตรง

  • สถานที่ที่มีการเปลี่ยนแปลงอุณหภูมิและความชื้นอย่างรวดเร็ว

  • มีความเสี่ยงของเพลิงไหม้

  • สัมผัสกับสารระเหย

  • มีความเสี่ยงของไฟฟ้าดูดหรือการสั่น

  • ใกล้กับทีวีหรือวิทยุ

  • ใกล้บริเวณที่มีฝุ่นผงหรือสิ่งสกปรกมากเกินไป

  • ใกล้กับน้ำ

  • ใกล้เครื่องปรับอากาศหรือเครื่องทำความร้อน

  • ใกล้กับเครื่องทำความชื้น

ใช้แผนปูรองแบบกันไฟฟ้าสถิตย์ในท้องตลาดเพื่อป้องกันการก่อตัวของไฟฟ้าสถิตในตำแหน่งที่อาจเกิดไฟฟ้าสถิตได้

พื้นที่มีความมั่นคงเพียงพอในการติดตั้งและใช้งานเครื่องพิมพ์อย่างถูกต้องได้

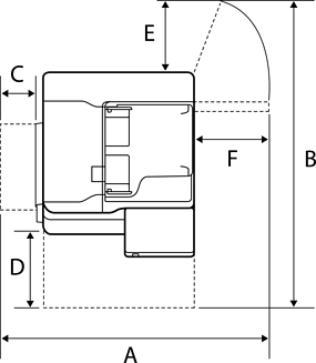
เครื่องพิมพ์

ด้านหน้า

A

1588 มม.

B

518 มม.

ด้านบน

A

1065 มม.

B

1238 มม.

C

70 มม.

D

435 มม.

E

210 มม.

F

441 มม.

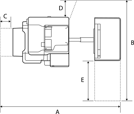
พร้อมอุปกรณ์การเข้าเล่มด้วยลวดเย็บ

ด้านหน้า

A

1588 มม.

B

518 มม.

ด้านบน

A

2076 มม.

B

1260 มม.

C

110 มม.

D

210 มม.

E

456 มม.

พร้อมอุปกรณ์การเข้าเล่มภายใน

ด้านหน้า

A

1588 มม.

B

518 มม.

ด้านบน

A

1665 มม.

B

1260 มม.

C

117 มม.

D

210 มม.

E

456 มม.