> 製品情報 > 製品仕様 > 設置場所と設置スペース

設置場所と設置スペース

以下の条件を満たす場所に設置してお使いください。

  • 本製品の質量に十分耐えられる、水平で安定した場所

  • 本製品の通気口を塞がない場所

  • 用紙のセットや印刷した用紙の取り出しが無理なく行える場所

  • 本書『動作時と保管時の環境仕様』を満たす場所

重要

以下のような場所には設置しないでください。動作不良や故障の原因になります。

  • 直射日光の当たる場所

  • 温湿度変化の激しい場所

  • 火気のある場所

  • 揮発性物質のある場所

  • 振動の多い場所

  • テレビ・ラジオに近い場所

  • ホコリや塵の多い場所

  • 水に濡れやすい場所

  • 冷暖房器具に近い場所

  • 加湿器に近い場所

静電気の発生しやすい場所では、市販の静電防止マットなどを使用して静電気の発生を防いでください。

本製品をお使いいただくために必要なスペースを確保してください。

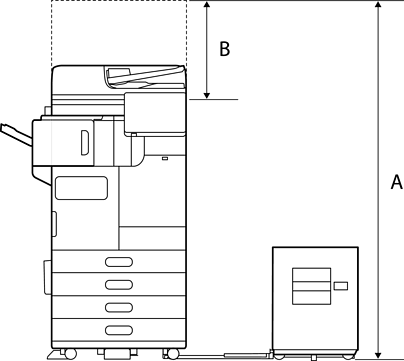
プリンター

正面

A

1588 mm

B

518 mm

上面

A

1065 mm

B

1238 mm

C

70 mm

D

435 mm

E

210 mm

F

441 mm

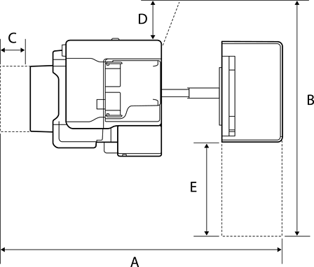
ステープルフィニッシャー装着時

正面

A

1588 mm

B

518 mm

上面

A

2076 mm

B

1260 mm

C

110 mm

D

210 mm

E

456 mm

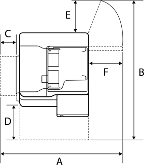
インナーフィニッシャー装着時

正面

A

1588 mm

B

518 mm

上面

A

1665 mm

B

1260 mm

C

117 mm

D

210 mm

E

456 mm